
Martedì 27 gennaio 2026 alle ore 11.00 si terrà la cerimonia commemorativa a cura del Comune di Trieste nel cortile interno del Museo e Monumento Nazionale della Risiera di San Sabba. La cerimonia si svolgerà alla presenza delle autorità civili, militari e religiose e sarà trasmessa in diretta social sul canale Facebook del Comune di Trieste.
Le modalità di accesso del pubblico alla cerimonia, formulate in base al Piano di Gestione delle Emergenze e dell’Evacuazione per le cerimonie istituzionali della Risiera di San Sabba, sono qui di seguito riepilogate.
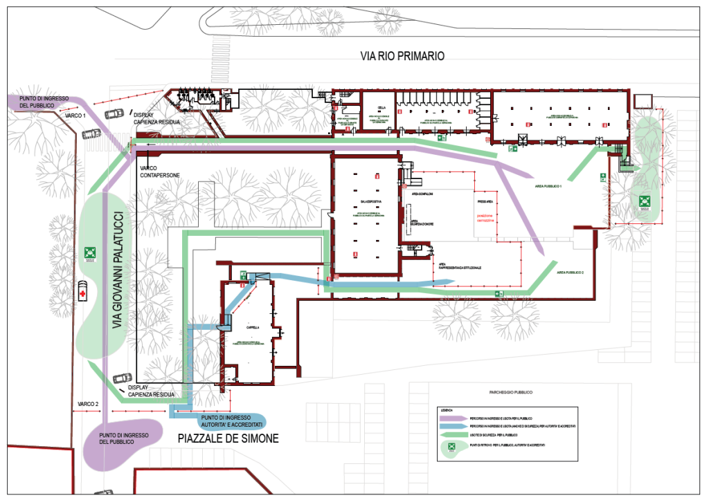
- L’accesso del pubblico alla Risiera sarà consentito a partire dalle ore 10.30 (prima la Risiera sarà chiusa).
- L’ingresso del pubblico avverrà da via Palatucci, dove saranno collocati due varchi presidiati, uno lato via Valmaura e uno lato via Rio Primario; oltrepassati i varchi, il pubblico potrà accedere alla Risiera dal portone principale (corridoio monumentale).
- L’ingresso del pubblico sarà libero fino a capienza massima esaurita, raggiunta la quale ulteriori persone potranno entrare solo a fronte di altrettante uscite.
- Per il pubblico non sono previsti accrediti o altre forme di prenotazione del posto. Gli accrediti riguardano solo le autorità e i soggetti che hanno parte attiva nella cerimonia. Gli accreditati entreranno dall’ingresso dedicato in piazzale De Simone.
- La capienza massima all’interno della Risiera è di 2.200 persone totali, incluse le autorità e tutti i soggetti che hanno parte attiva nella cerimonia. Ai due varchi di via Palatucci saranno collocati dei display su cui comparirà in tempo reale la quantità di posti ancora disponibili.
- Per ragioni di sicurezza, ai varchi saranno effettuati controlli a campione da parte del personale autorizzato. Si raccomanda pertanto di non portare con sé oggetti contundenti o in vetro (es. ombrelli con puntale, borracce metalliche, bottiglie di vetro); le bandiere possono essere introdotte solo se istituzionali o di associazioni ufficiali e se dotate di asta in plastica e priva di punta. Si raccomanda in linea generale di non introdurre in Risiera simboli divisivi.
- Durante la cerimonia il pubblico potrà accedere solo al cortile interno. Gli altri spazi monumentali e museali saranno riaperti a cerimonia finita. L’attività ordinaria del Museo e Monumento riprenderà ad attività concluse, indicativamente a partire dalle ore 13.
Viabilità e parcheggi
- La via Palatucci sarà chiusa ai mezzi di trasporto dalle ore 9.00 fino a fine cerimonia e ad avvenuto deflusso del pubblico.
- Il parcheggio attorno alla Risiera sarà regolarmente utilizzabile, fatta eccezione per alcuni stalli in piazzale De Simone che saranno riservati alle autorità. In caso di necessità, il varco al parcheggio di via Palatucci/piazzale De Simone potrà essere chiuso su disposizione delle autorità competenti. Si consiglia pertanto di utilizzare i varchi di via Rio Primario.
Si ricorda che le modalità di accesso alle cerimonie sono state introdotte, a seguito dei lavori di adeguamento della Risiera di San Sabba e in relazione al Certificato di prevenzione incendi, per ottemperare alla vigente normativa sull’evacuazione in caso di emergenza, con l’obiettivo di tutelare la sicurezza delle persone che partecipano numerose agli eventi.
Come già accaduto nelle ultime edizioni, la sicurezza dei partecipanti alla cerimonia sarà garantita anche dai controlli, effettuati dal personale autorizzato, agli ingressi predisposti.
Il Monumento Nazionale della Risiera di San Sabba è un luogo di memoria, teatro e simbolo delle tragedie della Seconda guerra mondiale, spazio di raccoglimento in ricordo delle vittime.
Per questo e per consentire il pacifico svolgimento della cerimonia, il Comune di Trieste desidera sensibilizzare tutti i partecipanti al rispetto del luogo e della sua storia, invitando a evitare contestazioni e simboli divisivi.
